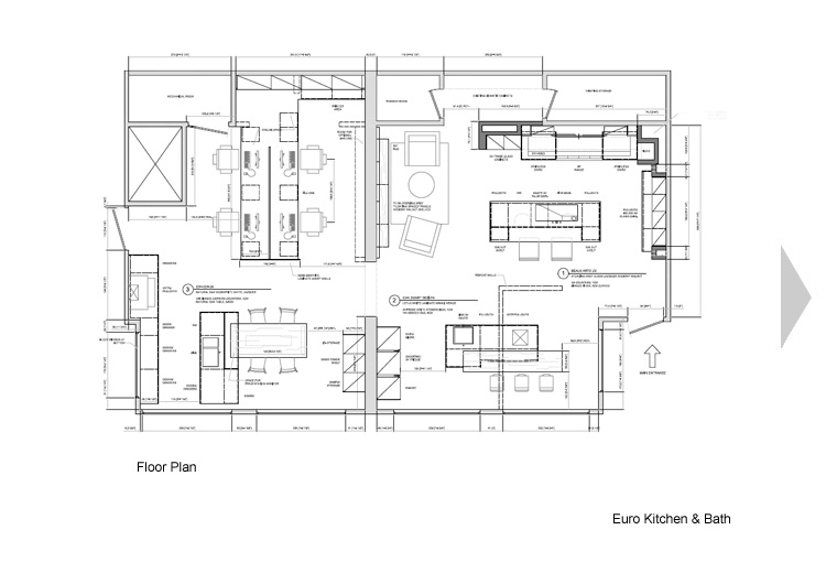
Euro Kitchen & Bath, of Laguna Beach, CA, is the oldest continuously-operating SieMatic dealer in America. Over the years we have executed individual displays for this outfit, but this year, we conceived a complete re-fit of the space.
A sample of drawings from this project are revealed with the navigation arrows at right.
|
|
 |